Proponiamo in vendita appartamento duplex in contesto residenziale di nuova realizzazione, in centro a Castelfranco Veneto, fronte parco con alberi secolari di oltre 5000 mq .
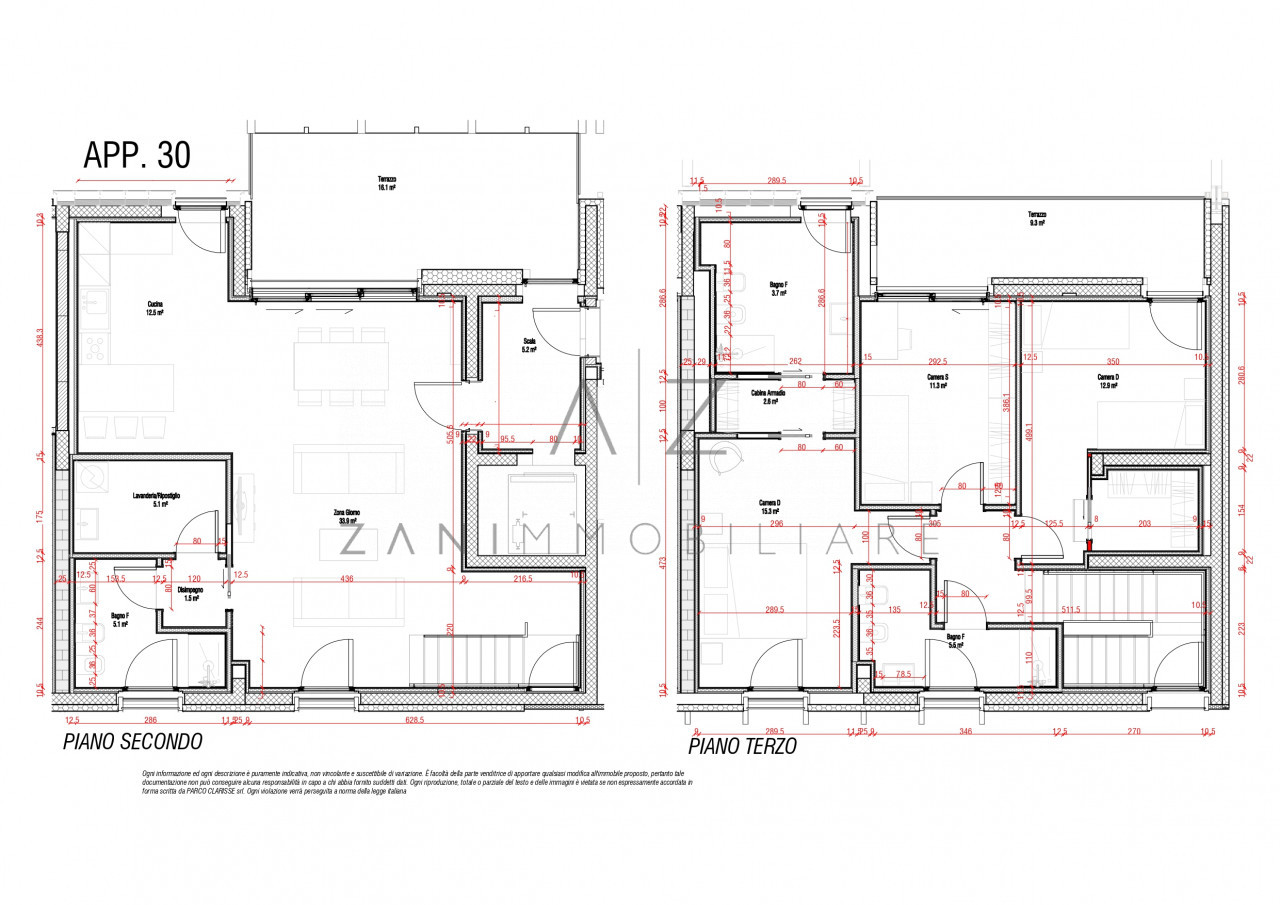
Al primo piano entriamo in un ampio e luminoso soggiorno che si estende su un terrazzo abitabile con vista sulle mura, una cucina a cambusa che si affaccia sul soggiorno, un ripostiglio, un antibagno e un bagno di servizio.
Una comoda scala porta al piano superiore, dove attraverso un generoso disimpegno si accede alla camera matrimoniale con cabina armadio e bagno di esclusivo accesso, altra camera matrimoniale che si affaccia su un terrazzo con vista mura, una camera singola con cabina armadio.
È presente un ulteriore bagno sul piano.
Garage doppio al piano interrato.
L'appartamento gode di tutti i comfort più all'avanguardia: massimo livello di certificazione energetica, impianti fotovoltaici, impianto di geotermia condominiale, riscaldamento a pavimento, impianto di recupero del calore e purificazione dell'aria, impianto di raffrescamento e impianto di domotica.
Per info e visite contattare Anna:
3467853754 - anna@zanimmobiliare.it
Al primo piano entriamo in un ampio e luminoso soggiorno che si estende su un terrazzo abitabile con vista sulle mura, una cucina a cambusa che si affaccia sul soggiorno, un ripostiglio, un antibagno e un bagno di servizio.
Una comoda scala porta al piano superiore, dove attraverso un generoso disimpegno si accede alla camera matrimoniale con cabina armadio e bagno di esclusivo accesso, altra camera matrimoniale che si affaccia su un terrazzo con vista mura, una camera singola con cabina armadio.
È presente un ulteriore bagno sul piano.
Garage doppio al piano interrato.
L'appartamento gode di tutti i comfort più all'avanguardia: massimo livello di certificazione energetica, impianti fotovoltaici, impianto di geotermia condominiale, riscaldamento a pavimento, impianto di recupero del calore e purificazione dell'aria, impianto di raffrescamento e impianto di domotica.
Per info e visite contattare Anna:
3467853754 - anna@zanimmobiliare.it
Mappa
Contattaci
INFORMAZIONI EXTRA
AMBIENTI
| Soggiorno | |
| Cucina | |
| Ripostigli | 1 |
| Terrazzi | 2 |
| Giardino condominiale | |
| Garage | 1 |
LIVELLI & COMFORT
| Livelli | Piano intermedio , Primo piano |
| Piano numero | 2 |
| Impianto geotermico | |
| Pannelli fotovoltaici | |
| Predisposizione aria condizionata | |
| Riscaldamento autonomo | |
| Riscaldamento a pavimento | |
| Accesso disabili | |
| Ascensore | |
| Domotica | |
| Numero accessi carrai | 2 |
| Numero portoni | 1 |
| Porta blindata | |
| Predisposizione allarme | |
| Tapparelle motorizzate |



