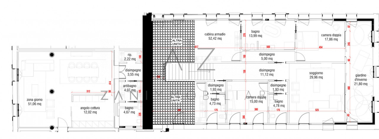
Proponiamo in vendita un elegante e prestigioso attico di 290 mq, vista Mura di Castelfranco Veneto, che si trova all'interno di un ex convento del 1700, nel cuore della città, con al suo interno un parco verde di 3000 mq a porte chiuse la notte.
L'immobile di alto pregio è caratterizzato da ambienti moderni e raffinati; è stato completamente ristrutturato nel 2024/2025, mantenendo però la sua storicità.
Si distingue per spazi ampi e luminosi grazie alle grandi finestre che affacciano su tre lati, nord, est ed ovest, permettendo così di avere una vista esclusiva sulla cittadina ed una luce naturale per tutto l'arco della giornata.
L'attico viene consegnato chiavi in mano, con pavimentazione in legno e disposizioni interne da valutare assieme all'acquirente.
Completa la proprietà un garage doppio al piano interrato, direttamente collegato all'appartamento tramite ascensore.
Si informa che le immagini utilizzate nell’annuncio sono a scopo illustrativo e provengono da altri immobili dello stesso contesto.
Per maggiori info e visite contattare
Anna: 3467853754 - anna@zanimmobiliare.it
Adriana: 3489052906 - adriana@zanimmobiliare.it
L'immobile di alto pregio è caratterizzato da ambienti moderni e raffinati; è stato completamente ristrutturato nel 2024/2025, mantenendo però la sua storicità.
Si distingue per spazi ampi e luminosi grazie alle grandi finestre che affacciano su tre lati, nord, est ed ovest, permettendo così di avere una vista esclusiva sulla cittadina ed una luce naturale per tutto l'arco della giornata.
L'attico viene consegnato chiavi in mano, con pavimentazione in legno e disposizioni interne da valutare assieme all'acquirente.
Completa la proprietà un garage doppio al piano interrato, direttamente collegato all'appartamento tramite ascensore.
Si informa che le immagini utilizzate nell’annuncio sono a scopo illustrativo e provengono da altri immobili dello stesso contesto.
Per maggiori info e visite contattare
Anna: 3467853754 - anna@zanimmobiliare.it
Adriana: 3489052906 - adriana@zanimmobiliare.it
Mappa
Contattaci
INFORMAZIONI EXTRA
AMBIENTI
| Soggiorno | |
| Cucina | |
| Ripostigli | 1 |
| Mansarda | |
| Giardino condominiale | |
| Garage doppio | 1 |
| Lavanderia |
LIVELLI & COMFORT
| Livelli | Ultimo piano |
| Pannelli fotovoltaici | |
| Predisposizione aria condizionata | |
| Riscaldamento autonomo | |
| Riscaldamento a pavimento | |
| Accesso disabili | |
| Animali ammessi | |
| Ascensore | |
| Domotica | |
| Numero accessi carrai | 1 |
| Numero portoni | 1 |
| Porta blindata | |
| Predisposizione allarme | |
| Tapparelle motorizzate |